
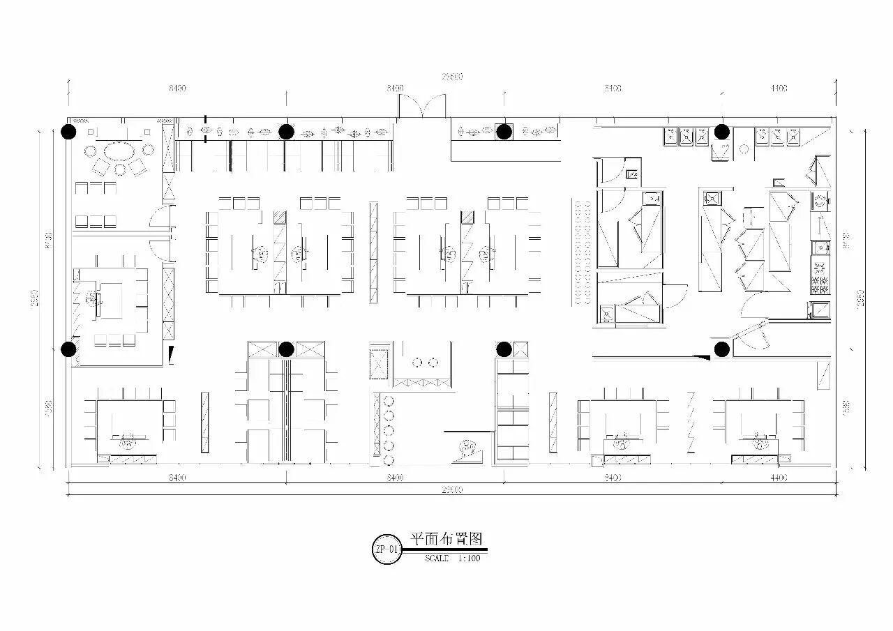
设计师:潘国权
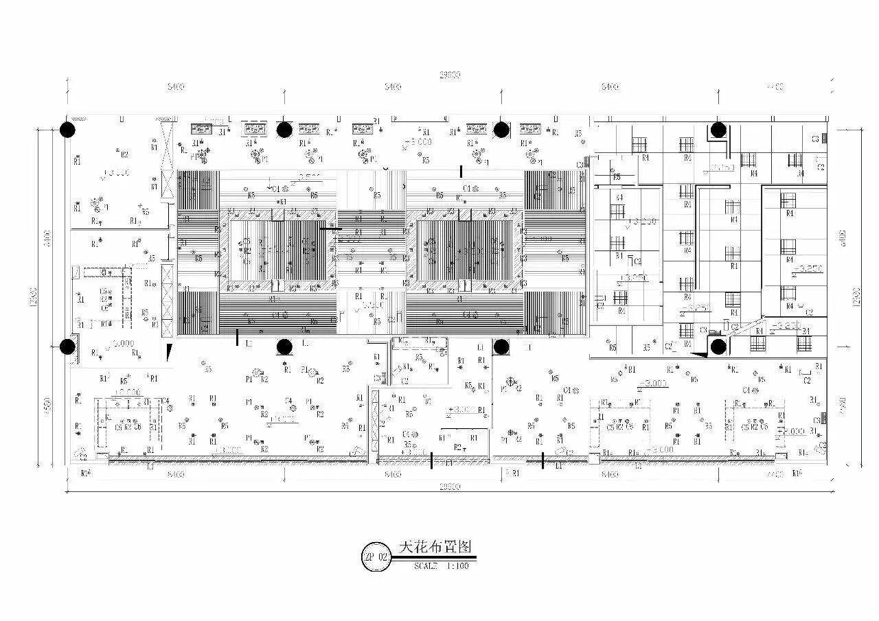
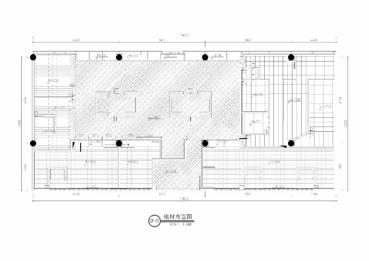
用材:大理石、古铜镜钢、磨砂玻璃、木饰面
地点:深圳市南山区保利美食文化广场3楼
面积:401平方
奔跑的深圳人,他们是夹带早餐赶车的上班族,他们是奔波小跑的拼命三郎,坐车要快,吃饭要快,谈生意也要快,激情迸发的刹那你是否还是觉得缺少了点什么?
在浮躁的城市里,在快节奏的生活环境下,“慢下来”似乎是不可能的,却又是很多人都在追求的,“慢下来”是一种生活态度,是一种健康的心态,是一种对生人的高度自信,岁月静好,温和从容。
铁板烧起源于日本,菜肴原汁原味、口味纯真,而且能亲眼目睹厨师即兴用手中的刀、叉、铲、调味瓶等进行花式表演,并将各色美食精心装盘的操作过程。虽然日本人喜欢用“猫之额”形容自己住宅的狭小,却在饮食方面有着“阔绰”的要求。
品尝铁板烧需要两三个小时的体验,从观看厨师的料理过程、趁热品鉴美味到各种美酒的滋润补味,可谓是一场完美的“慢食”之旅。即使不是多人聚会,哪怕是自己来吃,也不会觉得寂寞。
大渔铁板烧这种优雅、贵气的料理方式慢慢来到国人身边,往往都集中在城市消费的制高点。它是食客与厨师0距离的一种料理方式,建立了包容和接纳的人际关系,因为铁板烧不挑食物,不挑人,不挑地方,这又是最大度的情怀。
大渔铁板烧餐厅的厨房都是开放式的,没有刺鼻的料理油烟,受日式庙宇建筑的影响,大渔铁板烧餐厅多采用架空地板和室外平台的设计手法来展现灵活无碍的自由空间,结构简单,外观洒脱而轻快。
大渔环境优雅、私密性好,除了观看厨师出神入化的功夫表演之外,料理的香气分分钟都在刺激味蕾。大渔铁板烧讲究空间的功能空间,与大自然融为一体,借用外在自然景色,为室内带来无限生机,选用材料上也特别注重自然质感,以便与大自然亲切交流,其乐融融,让你慢慢喜欢,慢慢热爱。
大渔铁板烧在延伸的屋檐下有条走廊,供纳凉或小憩。房间内部被拉门隔开,方便拉上和开启,这让看起来有限的空间显得很宽敞。不同于普通快销餐厅的用材,大渔选用石材,古铜镜钢,磨砂玻璃,营造的是简洁大气的风格,空间的亮点主要是在天花造型,透光板吊顶传承着铁板烧的传统文化。
大渔铁板烧注重用材和线条比例,运用不同的质感对比、灯光氛围,打造一个没有催促感的舒适空间,柔和的光线照射下,看厨师一边翻滚着高温区的牛排,同时还“骚扰”着保温区的鱿鱼,忙里偷闲时再将刀叉、胡椒罐耍得眼花缭乱,让人食欲大增,边做边吃,让你慢慢去释放,慢慢被吸引。
慢慢,真好。
慢慢的接近,慢慢的喜欢,慢慢的想念,慢慢的回味....
商务合作、作品投稿、设计交流
请加个人微信号:rzno1mvp
友情链接